Workspace-Design für das 1.OG

by Stephen Williams

„IM 1. OBERGESCHOSS IST EINE BESONDERS COOLE ARBEITSATMOSPHÄRE MÖGLICH.“

Stephen Williams
Archi­tect RIBA

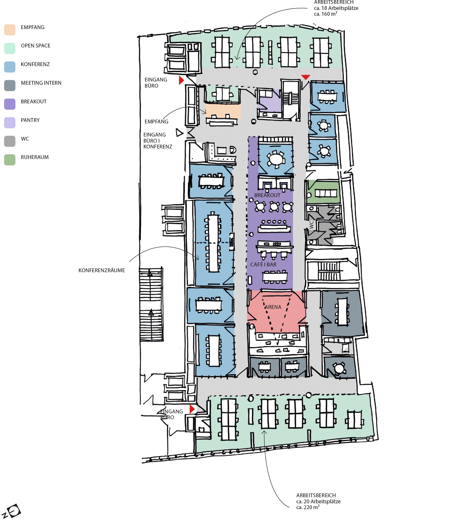
01. Oberge­schoss

Konzept Variante A: Konferenzcenter
ca. 40 Arbeitsplätze

01. Oberge­schoss

Konzept Variante B: Workspace Design
ca. 75 Arbeitsplätze

01. Oberge­schoss

Konzept Medical Health Center
1.OG Zonierung

02. Oberge­schoss

Konzept Regel­ge­schoss
ca. 115 Arbeitsplätze

Interior Moods